Save
Ask
Tour
Hide
$217,900
260 Days On Site
XXXX Woodhill RoadBurnsville, MN 55337
For Sale|Land|Active
Subdivision:
Vista View 1st Add
County:
Dakota
Listing courtesy of Pederson Realty Inc
Call Now: (612) 269-8914
Is this the listing for you? We can help make it yours.
(612) 269-8914



Save
Ask
Tour
Hide
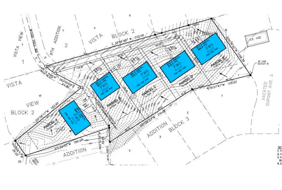
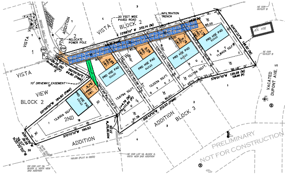
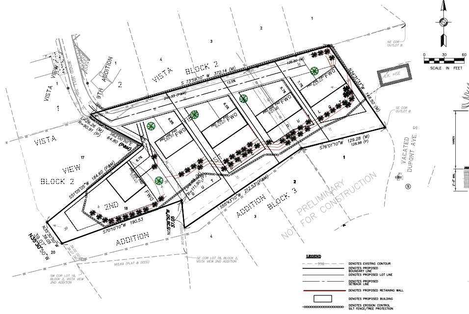
Listing price is for all 3 Lots/PIDs. Note the included drawings from surveying and plans from engineer to build up to 5 homes on the land, these plans will be part of the transaction. Property Taxes are all 3 PID's combined. Ask agent for supplements for more information on the lots or to book a showing. With acceptable offer terms, Seller is willing to contribute toward, or perform, limited clean-up and preparation for the next owner. Lot is on the left side at the end of the dead-end road. Buyer (and buyer's agent) to verify measurements.
Save
Ask
Tour
Hide
Listing Snapshot
Price
$217,900
Days On Site
260 Days
Bedrooms
N/A
Inside Area (SqFt)
N/A
Total Baths
N/A
Full Baths
N/A
Partial Baths
N/A
Lot Size
1.51 Acres
Year Built
N/A
MLS® Number
6726685
Status
Active
Property Tax
$112
HOA/Condo/Coop Fees
N/A
Sq Ft Source
N/A
Friends & Family
Recent Activity
| 9 months ago | Listing updated with changes from the MLS® | |
| 9 months ago | Listing first seen on site |
General Features
Acres
1.51
Land Lease
No
Utilities
Water AvailableNone
Zoning
Residential-Single Family
Save
Ask
Tour
Hide
Exterior Features
Lot Features
Rolling SlopeIrregular LotMany Trees
Community Features
School District
Burnsville-Eagan-Savage
Schools
School District
Burnsville-Eagan-Savage
Elementary School
Unknown
Middle School
Unknown
High School
Unknown
Listing courtesy of Pederson Realty Inc
Listing information is provided by Participants of the Northstar MLS. IDX information is provided exclusively for personal, non-commercial use, and may not be used for any purpose other than to identify prospective properties consumers may be interested in purchasing. Information is deemed reliable but not guaranteed. Copyright 2026, Northstar MLS.
Last checked: 2026-02-07 06:54 PM UTC
Listing information is provided by Participants of the Northstar MLS. IDX information is provided exclusively for personal, non-commercial use, and may not be used for any purpose other than to identify prospective properties consumers may be interested in purchasing. Information is deemed reliable but not guaranteed. Copyright 2026, Northstar MLS.
Last checked: 2026-02-07 06:54 PM UTC
Neighborhood & Commute
Source: Walkscore
Save
Ask
Tour
Hide

Did you know? You can invite friends and family to your search. They can join your search, rate and discuss listings with you.