Save
Ask
Tour
Hide
$999,900
134 Days On Site
13937 Ember CourtApple Valley, MN 55124
For Sale|Single Family Residence|Active
5
Beds
4
Total Baths
1
Full Bath
3
Partial Baths
3,530
SqFt
$283
/SqFt
2026
Built
Subdivision:
The Woodwinds 8th Add
County:
Dakota
Listing courtesy of Prandium Group Real Estate
Call Now: (612) 269-8914
Is this the listing for you? We can help make it yours.
(612) 269-8914Upcoming Open Houses
Sat, May 2, 1:00 PM - 4:00 PM
Sun, May 3, 12:00 PM - 4:00 PM




Save
Ask
Tour
Hide
TO BE BUILT Brand New Custom Home opportunity in Apple Valley/Eastview/Highland Schools. Walkout cul-de-sac homesite with large mature oak trees. This brand nbew homer includes all new home warranties, 3-car garage, finished lower level, 5BR/4BA, hardwood floors, quartz tops throughout, custom tile shower, vaulted ceilings, SS gourmet kitchen, custom onsite finished cabs, millwork and solid core doors, gas fireplace and more. We offer 2-story homes, one-level rambler homes, other lots and locations avail. Off-site, aceage, lakeshore and tear-down opportunities. Local Custom Builder of 100-years.
Save
Ask
Tour
Hide
Listing Snapshot
Price
$999,900
Days On Site
134 Days
Bedrooms
5
Inside Area (SqFt)
3,530 sqft
Total Baths
4
Full Baths
1
Partial Baths
3
Lot Size
0.421 Acres
Year Built
2026
MLS® Number
7001446
Status
Active
Property Tax
$730
HOA/Condo/Coop Fees
N/A
Sq Ft Source
N/A
Friends & Family
Recent Activity
| 2 hours ago | Listing updated with changes from the MLS® | |
| 4 months ago | Listing first seen on site |
General Features
Acres
0.421
Attached Garage
Yes
Garage
Yes
Garage Spaces
3
Land Lease
No
Levels
Two
Number Of Stories
2
Parking
Attached
Property Sub Type
Single Family Residence
Sewer
Public Sewer
SqFt Above
2550
SqFt Below
980
SqFt Total
3716
Utilities
Underground UtilitiesCable Available
Water Source
Public
Zoning
Residential-Single Family
Interior Features
Appliances
OvenCooktopDishwasherDisposalDouble OvenDryerExhaust FanHumidifierMicrowaveRefrigeratorStainless Steel Appliance(s)Washer
Basement
Walk-Out Access
Cooling
Ceiling Fan(s)Central Air
Electric
Circuit Breakers200+ Amp Service
Fireplace
Yes
Fireplace Features
Family RoomGasOtherStone
Fireplaces
1
Flooring
Hardwood
Heating
Natural GasForced Air
Interior
Breakfast BarEat-in KitchenKitchen IslandVaulted Ceiling(s)Walk-In Closet(s)
Laundry Features
Electric Dryer HookupLaundry RoomOtherSinkUpper LevelWasher Hookup
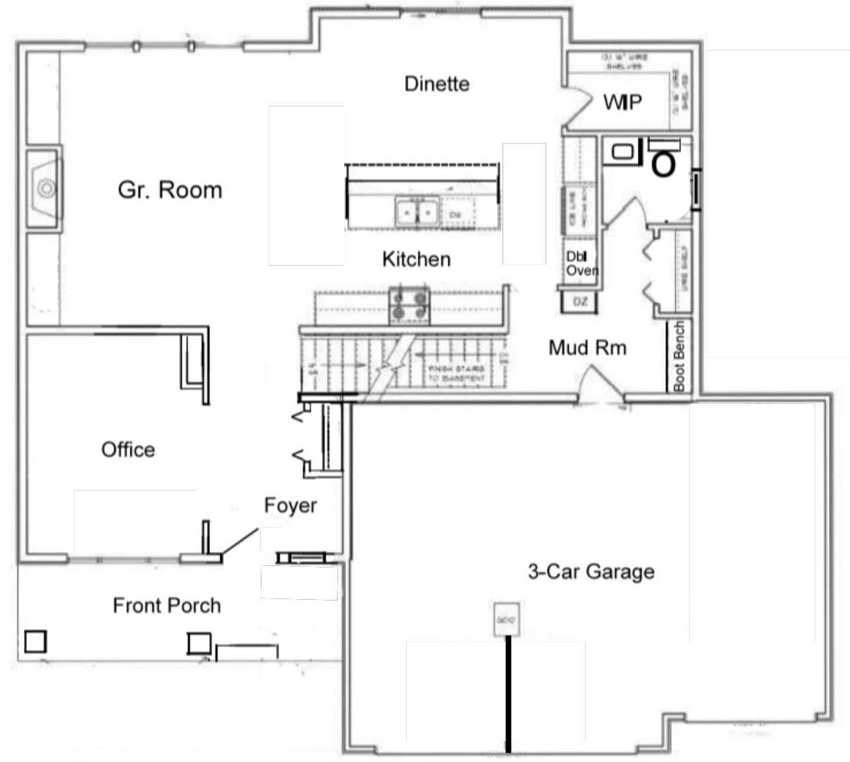
Bedroom
Dimensions - 18x16Level - Upper
Bedroom 2
Dimensions - 15x12Level - Upper
Bedroom 3
Dimensions - 14x12Level - Upper
Bedroom 4
Dimensions - 14x12Level - Upper
Bedroom 5
Dimensions - 12x11Level - Lower
Dining Room
Dimensions - 16x10Level - Main
Family Room
Dimensions - 31x18Level - Lower
Garage
Dimensions - 34x24Level - Main
Great Room
Dimensions - 18x18Level - Main
Kitchen
Dimensions - 16x10Level - Main
Laundry
Dimensions - 8x7Level - Upper
Mud Room
Dimensions - 16x5Level - Main
Office
Dimensions - 14x11Level - Main
Primary Bathroom
Dimensions - 15x10Level - Upper
Save
Ask
Tour
Hide
Exterior Features
Construction Details
ConcreteFrameStoneCement SidingVinyl Siding
Exterior
Tennis Court(s)
Lot Features
Cul-De-Sac
Patio And Porch
PorchFront Porch
Road Frontage
City Street
Roof
AsphaltShingle
Community Features
Accessibility Features
Accessible Full BathAccessible EntranceAccessible Kitchen
Roads
Paved
School District
196 - Rosemount-Apple Valley-Eagan
Township
Apple Valley
Schools
School District
196 - Rosemount-Apple Valley-Eagan
Elementary School
Unknown
Middle School
Unknown
High School
Unknown
Listing courtesy of Prandium Group Real Estate
Listing information is provided by Participants of the Northstar MLS. IDX information is provided exclusively for personal, non-commercial use, and may not be used for any purpose other than to identify prospective properties consumers may be interested in purchasing. Information is deemed reliable but not guaranteed. Copyright 2026, Northstar MLS.
Last checked: 2026-05-02 03:04 PM UTC
Listing information is provided by Participants of the Northstar MLS. IDX information is provided exclusively for personal, non-commercial use, and may not be used for any purpose other than to identify prospective properties consumers may be interested in purchasing. Information is deemed reliable but not guaranteed. Copyright 2026, Northstar MLS.
Last checked: 2026-05-02 03:04 PM UTC
Neighborhood & Commute
Source: Walkscore
Save
Ask
Tour
Hide

Did you know? You can invite friends and family to your search. They can join your search, rate and discuss listings with you.